Work
Reconstruire après la tempête Alex
Femmes bâtisseuses de la vallée de la Roya
Atelier Rural en Roya
Journal du débord
Le mal-logement en île-de-france
Les espaces publics ruraux ont-ils un sexe ?
Toutes habitantes, tous habitants
Emmaüs Roya
Ruine #02
Audience au Tribunal #01
Audience au Tribunal #02
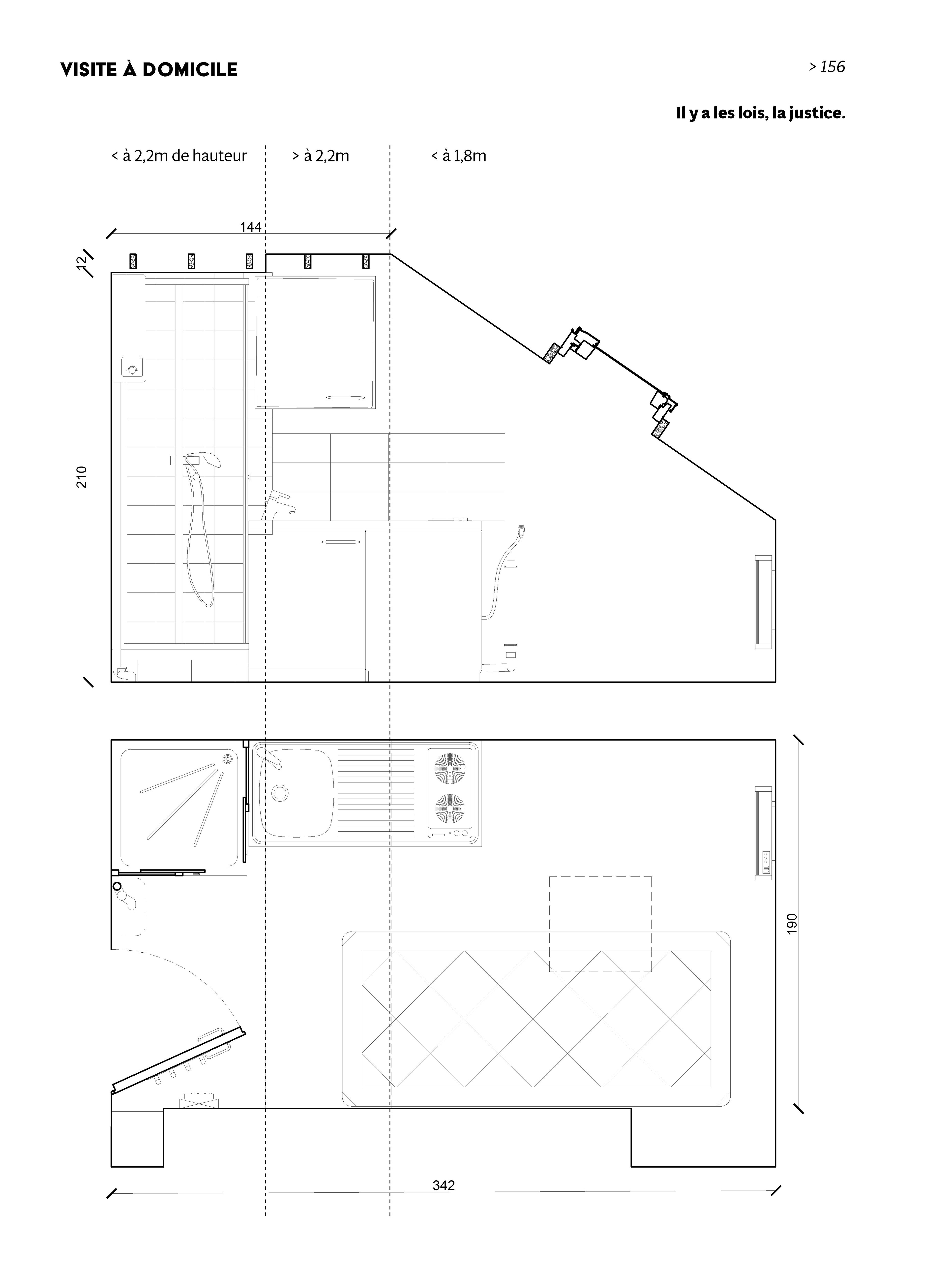
Visites à domicile contre l'indécence
Partager l'espace et l'habiter
LAB'us
EcoPôle
Atelier d'artiste
Workshop Réemploi
Ruine #01
Metro parisien
À propos
CV
Contact
Work
Reconstruire après la tempête Alex
Femmes bâtisseuses de la vallée de la Roya
Atelier Rural en Roya
Journal du débord
Le mal-logement en île-de-france
Les espaces publics ruraux ont-ils un sexe ?
Toutes habitantes, tous habitants
Emmaüs Roya
Ruine #02
Audience au Tribunal #01
Audience au Tribunal #02
Visites à domicile contre l'indécence
Partager l'espace et l'habiter
LAB'us
EcoPôle
Atelier d'artiste
Workshop Réemploi
Ruine #01
Metro parisien
À propos
CV
Contact
Extrait du livre "Toutes habitantes, tous habitants", d'Anouk Migeon & Carole Chaix. Une immersion dessinée à l'Espace Solidarité et Habitat de la Fondation Abbé Pierre.